Fastighetsmäklare i Sigtuna Kommun sedan 1993
Kommande
Besiktad
Dolda fel-försäkrad

Gärdesgatan 2

Sigtuna
Enplanshus som genomgått stora renoveringar med nya ytskikt i hela huset och nya kök och badrum i modern och exklusiv stil! Hörntomt belägen på återvändsgata med en av områdets största tomter. Välkommen till en sällsynt välrenoverad bostad med noga genomtänkta materialval och lösningar för både stil och trivsel. Här erbjuds ett modernt boende med exklusiv standard, bekvämt på ett plan och där planlösningen ändrats för maximal trivsel. Ny el är dragen och även nya vattenledningar. Den stora sociala ytan med vardagsrum och kök i ett omges av stora fönsterpartier som släpper in mycket ljus från två väderstreck. Utrymmet här även två utgångar till husets tomt. Köket är utrustat med komplett maskinpark från Bosch och en köksö med extra bred induktionshäll och inbyggd köksfläkt i taket. Den stora gemenskapsytan rymmer större sällskap och här finns flera möbleringsmöjligheter. Två badrum med dusch, där det ena har både dusch och badkar samt en tvättdel. Påkostade materialval och golvvärme i båda badrummen. Fina detaljer som ett inbyggt hyllplan med belysning. Tre rymliga sovrum och ett extra allrum rymmer den stora familjen. Det ena sovrummet har gjorts om till ett sovrum från ursprungliga två. Ett återställande av dessa ger 4 sovrum vid behov. Ljusa ytskikt som målade väggar, ljust ekparkettgolv och tak med infällda spotlights. Fiber och larm finns installerat. Den stora och plana tomten har ett söderläge med sol långa dagar. Här finns gott om yta för både lek och rekreation med flera möjligheter. Garage med elport och uppfart för bil. Förråd i anslutning till garage. Här bor du med naturen runt hörnet och fina promenadstråk både i natur men även ner mot Mälaren och Sigtuna Stad och Strandpromenad. I närområdet finns flera skolor och förskolor samt idrottsanläggningar, badplatser och friluftsliv. Nära busshållsplats och i kommunen finns fina cykelvägar hela vägen till Märsta Station. Kommunikationer med SJ till både Stockholm och Uppsala samt närhet till Arlanda. Huset är besiktat och säljarna har tecknat en dolda fel-försäkring.

Fakta

Typ
Friliggande villa
Rum
5 ROK
Sovrum
3
Boarea
134 KVM
Fastighetsbeteckning
Smörblomman 1
Tomtarea
726 KVM
Förbesiktad
Ja
Säljarförsäkring
Ja
Adress
Gärdesgatan 2
Postnummer
19332
Ort
Sigtuna
Område
Prästängarna
Kommun
Sigtuna
  • Interiör
    Antal rum
    5 ROK
    Boarea
    134 KVM
    Allmänt
    Huset har 2019 genomgått större renoveringar och i princip alla ytskikt, kök och badrum är från detta årtal. Tillsammans med el, vattenledningar, nya innerdörrar och ändrad planlösning mm.
    Hall
    Redan i hallen presenterar sig husets höga standard och moderna skick. Här finns gott om svängrum och plats för klädhängare, hattylla, skoställ och garderober eller byråer. Ljust målade väggar och matchande laminatgolv. Infällda spotlights i taket. Längre in i hallen finns ett förråd som ger extra förvaringsyta.
    Kök
    Modernt och exklusivt kök i mycket trivsam planlösning med köksö. Svårslagen social yta där köket har goda arbetsytor och förvaringsmöjligheter. Den öppna ytan mot vardagsrummet erbjuder flera möbleringsmöjligheter för matbord och köksön är både en trivsam arbetsyta men också en fin servieringsyta med sittplatser. I köksön finns en extra bred induktionsspishäll och ovan är in inbyggd fläkt i taket. I köksön finns även eluttag och förvaring i skåp. Kökets maskinpark är komplett och från Bosch med kyl och frys i fullhöjd, ugn, kombiugn/micro, integrerad diskmaskin och diskho. Infällda spotlights i taket och ett snyggt stänkskydd ovan köksbänk.
    Vardagsrum
    Rymligt och ljust vardagsrum i öppen yta mot köket rymmer den stora familjen och större sällskap. Häftig yta med stora fönsterpartier i två väderstreck samt utgång till uteplatsen under tak. Här finns flera möbleringsmöjligheter som rymmer både matbord och sittgrupper samt TV-hörna. Ljust målade väggar och ljust ekparkettgolv.
    Sovrum 1
    Rymligt sovrum som är enkelt att möblera. Här ryms dubbelsäng och övriga möbler som nattduksbord och byrå. Walk-in closet med infällda spotlights i taket och flera garderober ger extra förvaringsutrymme. Målade väggar med matchande heltäckningsmatta på golvet.
    Sovrum 2
    Även detta sovrum är rymligt och är enkelt att inreda. Målade väggar och matchande heltäckningsmatta på golvet.
    Sovrum 3-4
    Stort sovrum sov tidigare varit två sovrum. Kan återställas genom att sätta upp den avskiljande väggen och öppna upp dörren. Målade väggar och matchande heltäckningsmatta på golvet.
    Allrum
    Välplacerat allrum, perfekt att använda som ett extra vardagsrum, lekrum eller kontor. Utgång till tomten. Ljust målade väggar med en fondtapet och ljus ekparkett på golvet.
    Badrum 1
    Exklusivt och lyxigt badrum med stor yta och både dusch och badkar! Väl valda materialval och ytskikt med stora och matchande klinker- och kakelplattor samt golvvärme. Takdusch bakom vikbara duschväggar i glas och en bred handfatskommod med två blandare. Stor spegel med inbyggd belysning. Här finns även en tvättdel med skåp och bänk och tvättmaskin och torktumlare. Här står även varmvattenberedaren och två takfönster ger behagligt ljusinsläpp.
    Badrum 2
    Även detta badrum är påkostat och mycket stilrent. Stora och matchande kakel- och klinkerplattor på golv och väggar. Runt handfat på skiva och med skåp under. Hyllplan i glas och matchande spegel ovan. Duschvägg i glas och inbyggda hyllplan med inbyggd belysning ger badrummet en modern karaktär. Takdusch och golvvärme.
  • Byggnad
    Byggnadstyp
    1-planskedjehus
    Byggnadsår
    1969
    Fasad
    Träpanel
    Stomme
    Trä
    Grundläggning
    Betongplatta
    Fönster
    2-glas och 3-glas isoler
    Tak
    Plåt/aluminium
    Uppvärmning
    Direktverkande el och luft/luftvärmepump
    Ventilation
    Självdrag
    Vatten och avlopp
    Kommunalt vatten året om. Kommunalt avlopp
    Energideklarerades
    2019-08-23
    Energideklaration
    Utförd
    Energiprestanda
    172 kWh/m² (Atemp) och år
    Fastighetsbeteckning
    Smörblomman 1
    Övrigt
    Larm finns via Verisure, kan övertas via separat ö.k Fiber är installerat i huset Under 2019 har flera större renoveringar genomgåtts i huset: - Båda badrummen totalrenoverades - Badrum 1 gjordes större. - Ny planlösning i kök och vardagsrummet med nytt kök och nya ytskikt - Nya ytskikt (golv, väggar, tak) i hela huset. - Nydragen el med nya strömbrytare och eluttag. Strömbrytare och lampor är kopplade till Plejd för styrning från telefon. - Nya innerdörrar. - Sänkt tak med infällda spotlights. - Ändrat planlösning i Sovrum 1 och gjort en större förvaringsyta. - Sovrum 3-4 var tidigare två separata sovrum som gjorts till 1 sovrum. - Tilläggsisolerat ytterväggar från insidan. - Dragit nya vattenledningar - Vissa element/radiatorer nya Målat fasad Gruslagt gång Byggt altan Bytt fönster i vardagsrum och allrum. Nibe varmvattenberedare från 2018. Luft-/luftvärmepump 2015 Tak från 1994
  • Allmänt om fastigheten
    Upplåtelseform
    Friköpt
    Total Driftskostnad
    63 543 kr/år
    El: 40 000 KR
    Elförbrukning: 15283 kWh
    VA: 6 800 KR
    Väg, samf.: 4 524 KR
    Försäkring: 12 219 KR
    Beräknat antal pers
    4
    Kommentar
    Driftskostnader är individuella och baseras bl.a. på vilken förbrukning den boende har och vilket avtal med försäkrings- och elbolag. Driftskostnader för el innefattar även uppvärmning. För driftskostnader för el är de totala kostnaderna senaste 12 mån redovisade. Enligt vattenfall så har förbrukningen varit 17 308 kWh/år, vilket skulle innebära en årskostnad på elnätsavtalet på 19 938 kr/år. Kostnad för VA innefattar även renhållning.
    Taxeringsvärde
    2 922 000 KR
    Summa pantbrev
    2 788 000 KR
  • Övriga Byggnader/Utrymmen
    Garage och förråd. Lekstuga på tomten.
  • Tomt
    Tomtyta
    726 KVM
    Övrigt
    En av områdets största tomter! Hörntomt med goda utrymmen för både lek och rekreation. Den plana och öppna gräsytan erbjuder flera möjligheter och ramas in av ett staket. Odlingslådor och lekstuga. Äppel- och päronträd finns.
    Uteplats
    Huset har hela 4 st utgångar och från vardagsrummet nås husets uteplats som är under tak. uteplatsen rymmer större sittgrupper och övriga möbler. Husets entré kopplas fint ihop med ett trädäck och grusad gång från uppfart och runt garage. Söderläge som ger sol långa dagar.
  • Rättigheter & Belastningar
    Gemensamhetsanläggning: Sigtuna Prästängen GA:1 ändamål: Radio- TV och/eller tele, Gemensamhetsanläggning: Sigtuna Smörblomman GA:1 Avtalsservitut Ledning Nyttjanderätt El Last: Avtalsservitut: Ledning, 01-IM3-69/1986.1
    Planbestämmelser
    Tomtindelning Stadsplan
  • Övrigt
    Uppgifter om fastigheten härrör huvudsakligen från säljaren och kontrolleras av fastighetsmäklaren endast om omständigheterna ger anledning till detta. Samtliga areauppgifter är baserade på säljarens information och information från Lantmäteriets Fastighetsregister. Dessa uppgifter kan av olika skäl vara felaktiga. Den köpare som anser arean vara av betydelse för köpet bör därför vidta en uppmätning.
  • Närområde
    Allmänt om området
    Sigtuna är bland annat känt som Sveriges äldsta stad med vacker natur som omgivning och beläget precis vid Mälaren. Från Gärdesgatan når du Sigtunas stadskärna, Mälaren och strandpromenad snabbt via gångväg genom Prästängarna eller genom Sigtuna direkt till Sigtunas gästhamn. I området och vid Mälaren finns flera trevliga alternativ till promenad, motion, lekplatser, fiske och badplatser. I Prästängarna finns fotbollsplaner och tennisbanor i närheten. Prästängshallen håller i flera sporter och idrotter samt en tennishall. Promenadavstånd till det fina Hällsboområdet och Hällsbostugan med fina promenad- och vandringsleder. Även nya Sigtuna Stadsängar ligger på nära avstånd med Lidl-butik, närservice, apotek, restaurang och café. Från Gärdesgatan har du även promenadavstånd till Sigtunastiftelsens hotell- och konferensanläggning med restaurang som serverar frukost, lunch och middag samt julbord. Strandpromenaden är ett trevligt promenadstråk som fortsätter långt förbi caféer, sittgrupper ute på bryggorna, minigolfbana, hamnar och badplatser. I Sigtunas stadskärna finner du Stora Gatan, en gågata med fina trähus där butiker, restauranger och caféer erbjuder det mesta. Här finns även gym (WE), närservice banker, systembolag och livsmedelsbutik. Längre ned mot hamnen finns båtplatser och välkända hamnkrogar. På vintern anordnas skridskoturer på fjärden. I Sigtuna finns även biografen Gröna Ladan. Sigtuna Fritidscenter är en trevlig anläggning med flera olika vattenaktiviteter. För den golfintresserade finns Sigtuna Golfklubb närmast och även Arlandastad Golf. Rävsta naturreservat är popuärt friluftsområde. Närliggande Wenngarn har gjort sig känt som ett nytt och levande bysamhälle i vacker slottsmiljö. Wenngarns slott står kvar sedan 1600-talet och i området finns bageri och slottscafé som serverar frukost och brunch med närproducerade råvaror. Wenngarns sportcenter har gym och olika typer av träningspass och yoga samt ett utegym med hinderbana. Sigtuna har flera bra val av skolor. Närmast och inom promenadavstånd ligger: Hällsbo förskola S:t Pers skola (F-6) Sankt Olofs skola (7-9) Sigtunaskolan Humanistiska Läroverket. Fler av skolorna i Sigtuna: S:ta Gertruds skola (F-6) Väringaskolan (F-6), Josefinaskolan som är en grundskola (F-9) och Waldorfförskola på samma område. Några förskolor i Sigtuna: S:ta Gertruds förskola Karusellen Montessori Sandsborg Montessori Elefanten Wenngarns förskola
    Kommunikation
    Från området och från stadskärnan går bussar ut genom Sigtuna och vidare mot bl.a. Arlanda, Märsta, Uppsala, Enköping och Bålsta. Från Märsta Station går både pendeltåg och snabbtåg till Stockholm och Uppsala via SJ (ca 20 min vardera för SJ). Pendlarparkering vid tågstation i Märsta. Cykelvägar över hela kommunen som nås direkt från fastigheten och som bl.a. går hela vägen till Märsta Station.
    Parkering
    Vid återvändsgatan finns 7 st gästparkeringar.
  • Dokument & Länkar
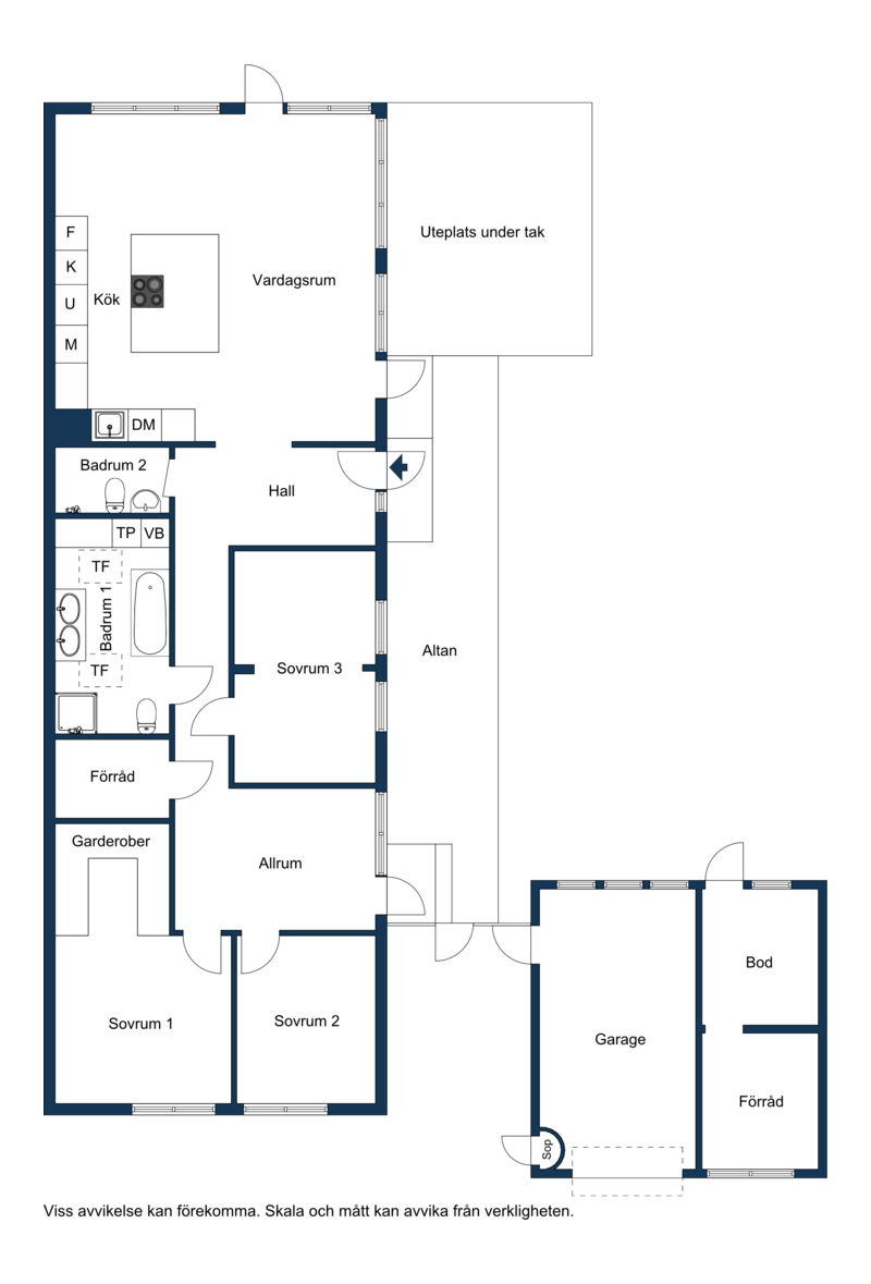
  • Planritning
    Planlösning
    Alternativ planlösning
  • Karta

Intressesanmälan för

Fyll i dina uppgifter nedan så återkommer vi snart till dig.

Formuläret innehåller fel. Kontrollera formuläret och försök igen. Tack!

Tack för ditt meddelande!

Ansvarig mäklare

Intresserad av detta objekt?

Anmäl Intresse

Bilder

Kök
Kök
Kök
Kök
Kök
Kök
Kök
Kök
Hall
Badrum 1
Badrum 1
Badrum 1
Badrum 1
Badrum 2
Badrum 2
Sovrum 1
Sovrum 1
Sovrum 2
Allrum
Allrum
Sovrum 3-4
Sovrum 3-4
Uteplats
Planlösning
Alternativ planlösning
Tomtkarta
Strandpromenaden i Sigtuna
Stora Gatan i Sigtuna
Strandpromenaden i Sigtuna
Strandpromenaden i Sigtuna
Strandpromenaden i Sigtuna

Karta


  • AFI Fastighetsmäklare
  • Stationsgatan 3C nb, 195 47 Märsta
  • 08 - 591 275 45
  • info@afi.se

Fyll i dina uppgifter och skicka så återkommer vi!

Formuläret innehåller fel. Kontrollera formuläret och försök igen. Tack!

Tack för ditt meddelande!